Scroll
Santa Maria Del Cedro

Realizzazione Piscina Comunale e Recupero delle Aree Urbane Limitrofe Per Sport e Inclusione, Santa Maria Del Cedro

Santa Maria del Cedro (CS)

Sport e inclusione

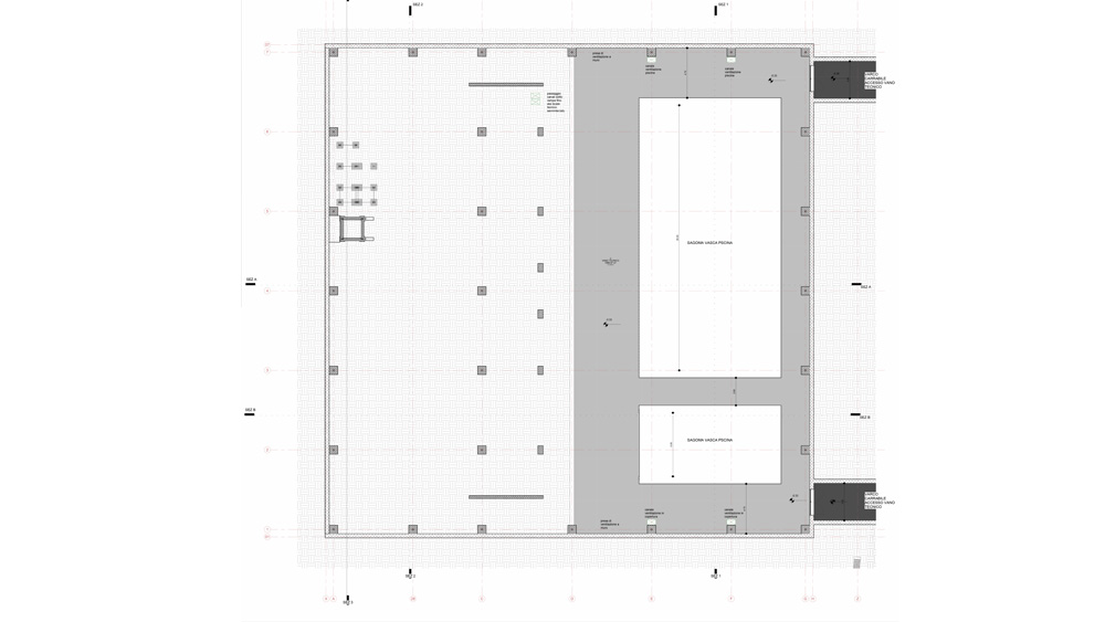
Nell’area sud costiera del Comune, in Via degli Aironi angolo SS18, è prevista la realizzazione di tre differenti aree ad uso pubblico: 1. Una area parcheggio pubblico 1.600 mq ; 2. Una area ad uso parco pubblico 15.000 mq; 3. Una area (13.000mq) per la realizzazione di piscina coperta con relativi parcheggi e servizi composta da due vasche una 12×25 m e l’altra 6×12 m. Il presente progetto tratta la realizzazione di tutte e tre le aree sopra introdotte e in generale studia i vincoli comunali presenti sull’area ma anche il dimensionamento della piscina pubblica coperta e dei relativi servizi.

Normative
La normativa di riferimento relativa alla progettazione architettonica delle piscine presenta tre differenti livelli: Regionale, nazionale e sportiva agonistica, si richiamano pertanto nell’ordine le seguenti norme: 1. ACCORDO TRA IL MINISTRO DELLA SALUTE, LE REGIONI E LE PROVINCE AUTONOME DI TRENTO E DI BOLZANO SUGLI ASPETTI IGIENICO-SANITARI PERLA COSTRUZIONE, LA MANUTENZIONE E LA VIGILANZA DELLE PISCINE A USO NATATORIO. GU n.51 del 3-3-2003; 2.DELIBERAZIONE DELLA GIUNTA REGIONALE 12 dicembre 2007, n. 770; 3. NORME CONI PER L'IMPIANTISTICA SPORTIVA deliberazione CONI n. 1379 del 25 giugno 2008 Norme uni di riferimento:UNI EN 13451 attrezzature per piscine e UNI 10637 Piscine - Requisiti degli impianti di circolazione, filtrazione, disinfezione e trattamento chimico dell'acqua di piscina.
Stato di fatto
Al momento, l'area si presenta libera da fabbricati, con terreno incolto e presenza di vegetazione spontanea. Tuttavia, sul lotto 1 sono presenti manufatti incompiuti, consistenti in fondazioni e alcuni pilastri dello spiccato. Tali ruderi dovranno essere rimossi prima dell’esecuzione dei lavori. Inoltre, sono presenti alberi cresciuti spontaneamente che dovranno essere abbattuti. Si segnala la presenza di una cabina elettrica a sud-ovest del lotto 1. Via delle Libellule attualmente è priva di pavimentazione.
Progetto
All’interno del lotto 1 si prevede la costruzione di una piscina coperta con accesso da via degli Aironi e via delle Libellule. Ogni accesso avrà un parcheggio pubblico con 31 posti auto, di cui uno per persone a ridotta mobilità. Ci saranno due percorsi pedonali che collegano i parcheggi alla piscina. Ad est, sarà creato un rilevato di 2 metri per raggiungere il livello delle piscine. I percorsi esterni saranno senza gradini, con rampe di pendenza inferiore all'8%. L'area esterna avrà aree di sosta con panchine, bidoni per la raccolta differenziata e illuminazione. Saranno piantati alberi ad est e ovest per schermare il fabbricato. Ad est, ci saranno due rampe di accesso al piano semi-interrato per vani tecnici. La struttura sarà prefabbricata in cemento armato precompresso.

Possiamo aiutarti?

Se hai in mente un progetto simile o credi che potremmo aiutarti a svolgere progetti simili puoi contattarci tranquillamente compilando questo form o ai recapiti:
Telefono

+39 393 435 9810

Email

info@mpstudiosrl.com