Scroll
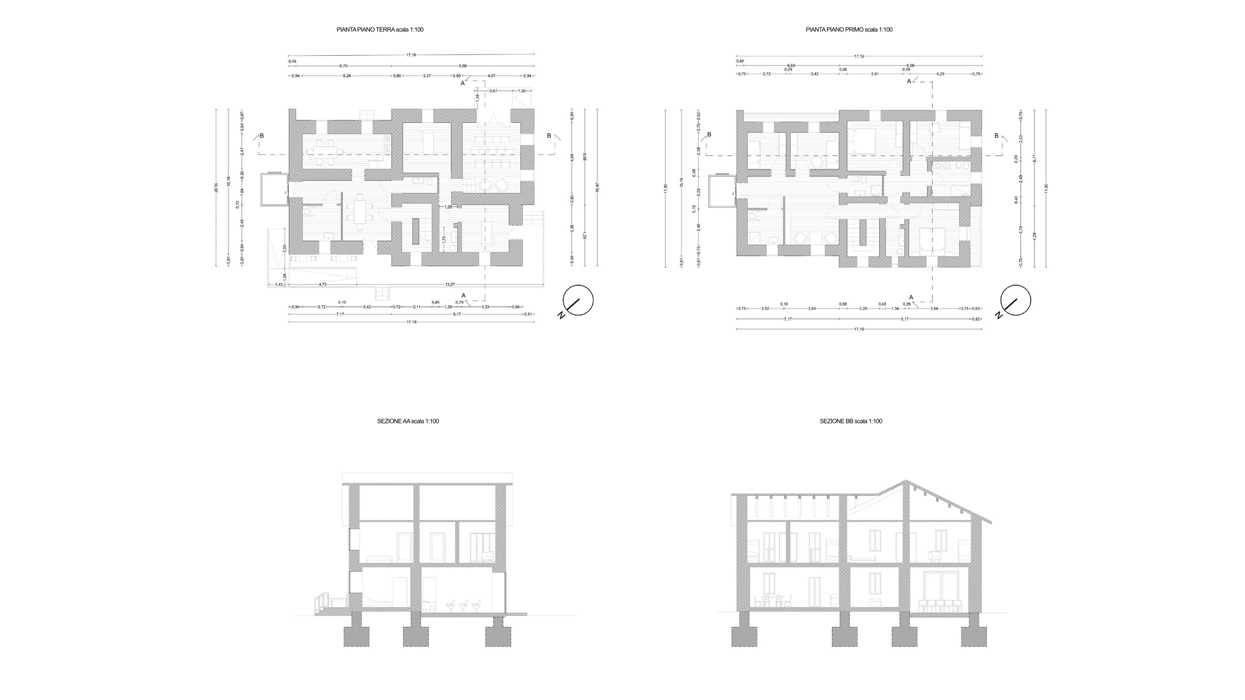
La presente relazione mira ad illustrare in maniera esaustiva gli interventi relativi alla rigenerazione e riqualificazione urbana “Nel Parco Ami Respiri Esplori Natura Tutti Insieme” nella località Bocca di Piazza nel comune di Parenti. L’intervento prevede la riqualificazione del parco presente, con l’intento di valorizzare l’area verde presente e renderla accessibile e fruibile a tutti, tramite la dotazione di area giochi per bambini, area fitness all’aperto, area food e picnic, area camping e parco avventura.
